Search properties

Search properties

Benitachell

€1.947.500
Property Details

Benitachell

€1.947.500
Description

RSPSP0702 - Villa in Benitachell

Villa - Benitachell

LUXURY MODERN VILLA FOR SALE AT CUMBRE DEL SOL

On Residential Resort Cumbre del Sol is where we find this wonderful villa, more exactly at Jazmines part of the urbanization, an exclusive area that stands out due to its sea views, its high standard infrastructure, and because it is made up of large luxurious villas.

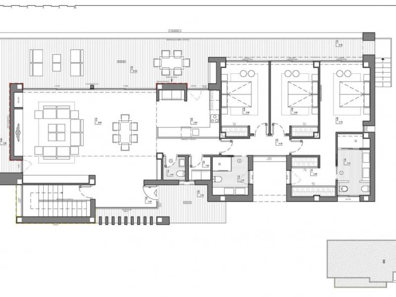
This villa is built on two floors, the main entrance is on the top floor, with two clearly defined wings. On the right hand side, we have the rest area, where the 3 bedrooms are located. One of the bedrooms has a large walk-in-closet and an en-suite bathroom; the other two bedrooms have a shared bathroom and spacious wardrobes. All of the bedrooms have direct access to the terrace and the sea views. In the other wing, is the day area, with a kitchen,which joins with the dining room and the exterior porch, the living room, a guest toilet, a wash room, etc.

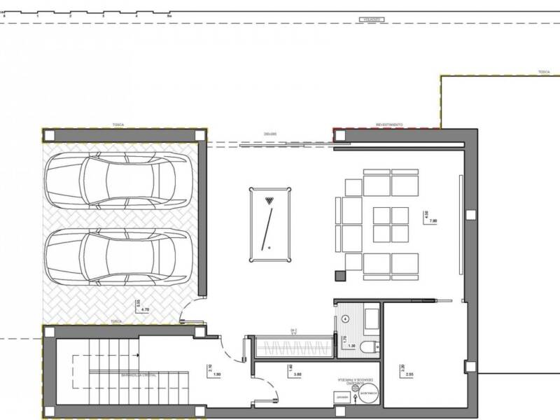
The lower floor of this villa is intended for leisure and entertainment, inside as well as outside. This floor is where we can find a two-vehicle garage, a bathroom, a storage room and an extra multipurpose living room that leads directly onto the exterior terrace, with a pool and several garden areas. A luxurious area to enjoy your free-time, sunbathing, watching a film, swimming or simply gazing at the sea.

Property Features

Contact us about this property